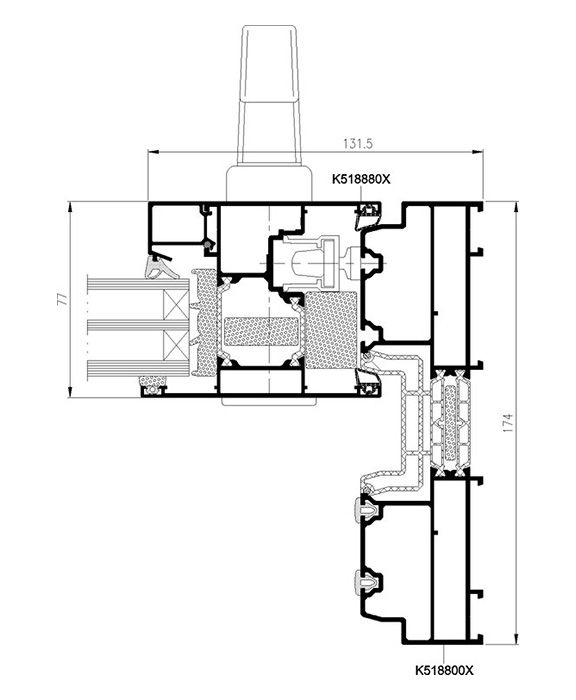
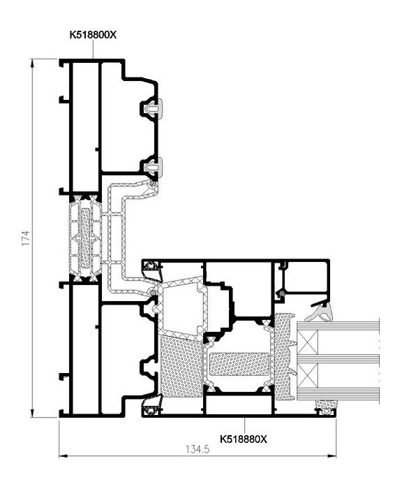
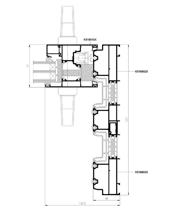
Zdvižně posuvné dveře MB-77HS umožňují pohodlný přístup na terasu, balkon či zahradu a jsou ideálním řešením pro předěl mezi obytnou částí a venkovním prostředím.
Konstrukce umožňuje výrobu křídel velkých rozměrů.
Nyní nově i ve variantě s trojkolejnicí!


